Quattro Vision Logo

Modernes Design

Zeitlos, funktional und harmonisch ins Ortbild integriert

Das Bauprojekt

Das Bauprojekt „Post-Areal“ umfasst den Neubau von 33 Eigentumswohnungen, verteilt auf die Häuser 1, 2 und 3 mit jeweils drei Etagen, einen Gewerbebau (Haus 4) sowie die Sanierung des denkmalgeschützten „Gasthof zur Post“. Dieser wird zu barrierefreien Seniorenwohnungen umgebaut.

Im Erdgeschoss des ehemaligen Gasthauses entsteht eine restaurierte Begegnungsstätte für Senioren. Direkt nebenan bietet die Quartiersmanagerin der Gemeinde Legau ihre Unterstützung an und organisiert gemeinsam mit der Nachbarschaftshilfe vielfältige Veranstaltungen. Durch die Beteiligung der Gemeinde soll dieser Treffpunkt allen Bürgerinnen und Bürgern offen stehen und sich zu einem lebendigen Ort der Begegnung entwickeln.

Der Bereich „Seniorenwohnen“ umfasst insgesamt 12 barrierefreie 2 ½-Zimmer- Eigentumswohnungen mit rund 60 m² in Haus 1, das über einen Zwischenbau mit Treppenhaus und Aufzug direkt mit dem ehemaligen Gasthof verbunden ist. Im sanierten Denkmalgebäude entstehen zusätzlich 12 weitere barrierefreie Wohnungen unterschiedlicher Größe zur Vermietung.

Haus 2 wird entlang des Triebwegs errichtet, mit nach Westen ausgerichteten Terrassen und Balkonen. Jede Etage beherbergt zwei 3-Zimmer- und eine 4-Zimmer-Wohnung. In Haus 3 entstehen pro Etage zwei 3-Zimmer- und zwei 2-Zimmer-Wohnungen, deren Balkone und Terrassen nach Süden ausgerichtet sind. Beide Häuser verfügen über Aufzüge. Im Innenhof zwischen den Häusern 1, 2 und 3 befindet sich ein Spielplatz.

In Haus 4 entstehen moderne Praxis- und Gewerbeflächen, die zur Vermietung vorgesehen sind.

Durchdacht

Von der Planung bis zum letzten Detail - Alles folgt einem klaren Konzept.

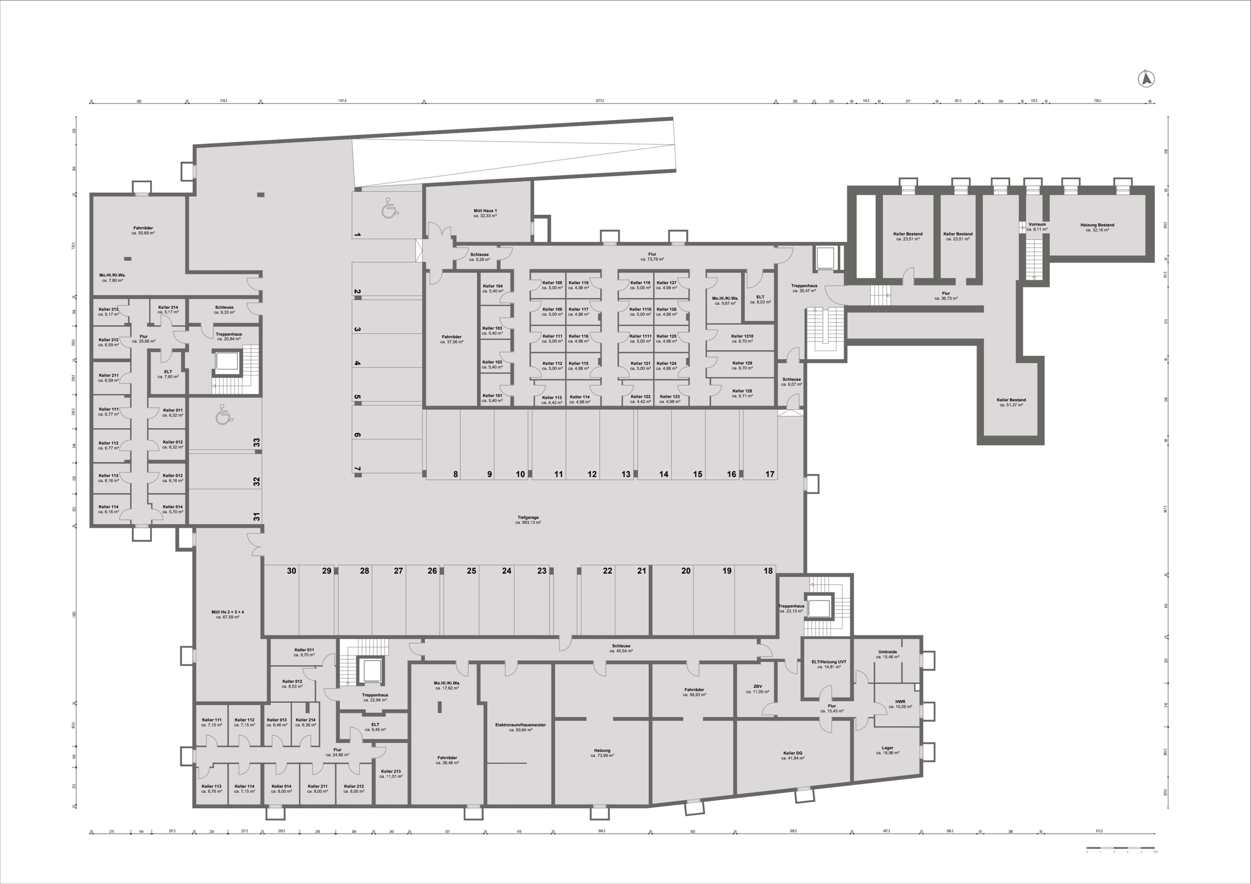
Untergeschoss und Tiefgarage

Die Tiefgarage ist über eine Rampe an der Nordseite des Grundstücks zugänglich und bietet 36 Stellplätze, davon drei für Menschen mit Behinderung.

Alle Wohnungen in Haus 1, 2 und 3 werden nur zusammen mit einem Tiefgaragenstellplatz verkauft (nicht im Preis enthalten); bei Bedarf können zusätzliche Stellplätze erworben werden.

Über dieselbe Rampe sind auch die Fahrradkeller erreichbar, die sich angrenzend an die Tiefgarage unter Haus 2 und 3 befinden.

Jede Wohnung verfügt außerdem über ein eigenes, abschließbares Kellerabteil.